Medrese











Arguniyye Medresesi, Memlük emirlerinden Halep naibi olan Argun El-Kamili tarafından 1357-1358 yılları arasında yaptırılmıştır. Emir Argun medresenin inşası tamamlanmadan önce 1357 yılında vefat etmiştir (Midilli, 2022). Medrese emirin vefatının ardından Rükneddin Baybars isimli bir emir tarafından tamamlattırılmıştır (Erguvan Medresesi, 2024). Medresenin ismi bazı kaynaklarda Arguniyye, bazılarında ise Erguvan veya Erguniyye olarak geçmektedir.
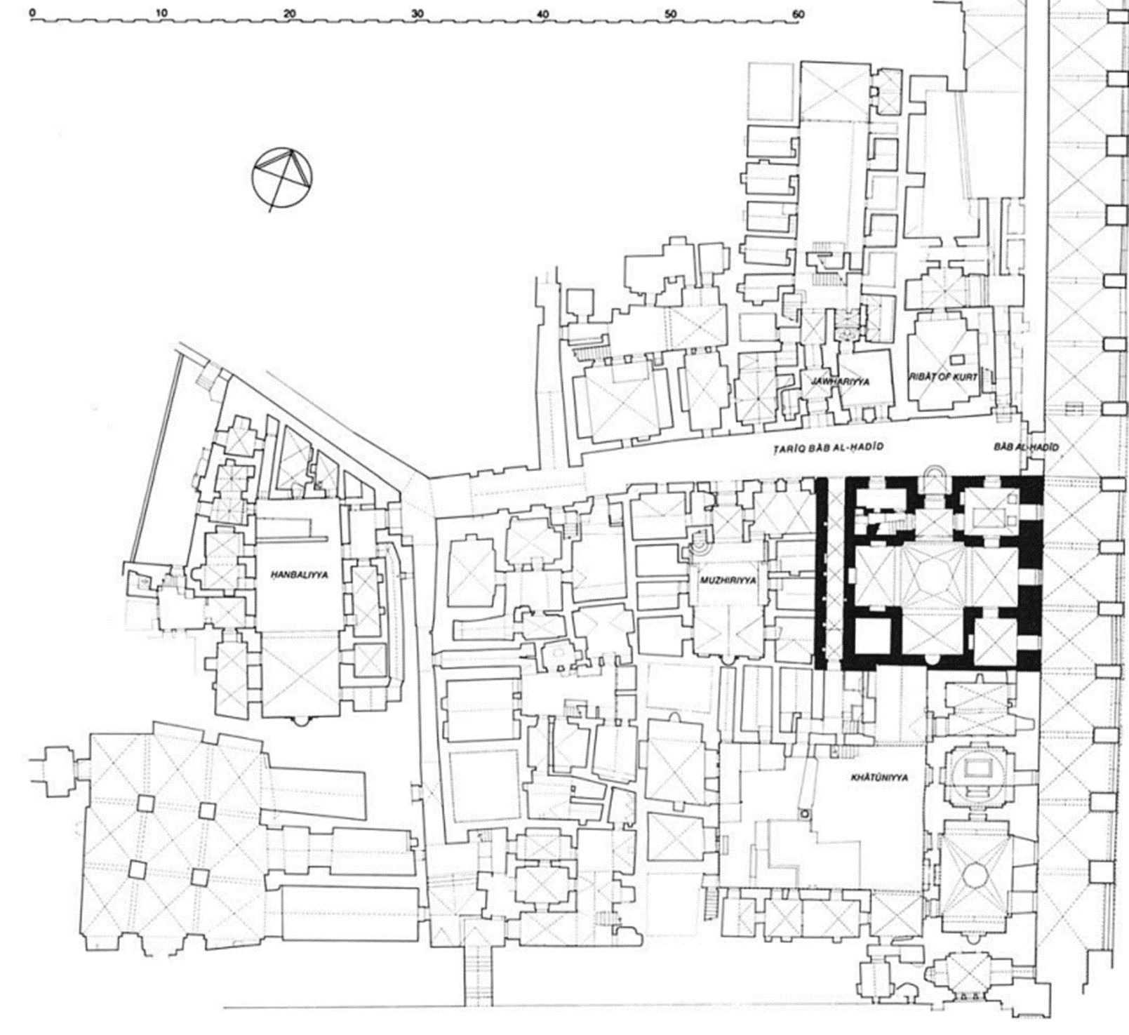
Medrese, Mescid-i Aksa’nın batısında, Demir Kapı’ya (Babül Hadid) yakın bir konumda yer almaktadır. İki katlı olarak inşa edilmiş olan yapı, Mescid-i Aksa avlusunda yer alan en görkemli yapılardan bir tanesidir. Medresenin girişinin yer aldığı duvarın bir kısmı iki renk taştan örülmüştür. Girişin üzerinde yer alan oyma taşta medresenin banisinin ismi ile inşa tarihi bulunmaktadır (Uğurluel, 2022; Erguvan Medresesi, 2024). Kitabe sokak cephesinde bulunan taç kapının sövesinde yer almaktadır. Kitabenin iki yanında madalyon şeklinde peşkir arma bulunmaktadır. Eşkenar dörtgen formunda bulunan arma, yaptıran kişinin devlet içerisindeki konumunu göstermesi bakımından önemlidir (Burgoyne & Richards, 1987).
Medrese kare plan şemasına sahiptir. Sokak cephesinde bulunan dar bir geçitten Hatuniyye Medresesi’ne geçit yer almaktadır. Hatuniyye Medresesi’nin tek renk taş cephesinin Arguniyye Medresesi’nde kırmızı ve krem olmak üzere iki renk olarak devam ettiği görülmektedir. Medresenin içerisinde iki renk taşla yapılmış, sivri kemerli bir mihrap bulunmaktadır. Mihrabın iki yanında Sultan 2. Abdülhamit zamanında Mescid-i Aksa’ya gönderilmiş şamdanlar yer almaktadır (Burgoyne & Richards, 1987).
Yakın zamana kadar konut olarak kullanımda olan yapı, bugün temelinin çevresinde yapılan kazılardan dolayı güvenlik sebebi ile boşaltılmıştır. Emir Argun’un yanı sıra Şerif Hüseyin ve Kral Abdullah bu medresede metfundur. Emir Argun’un türbesinin bulunduğu odanın penceresinin bir tanesi Demir Kapı’dan çıkıldığı zaman solda yer alırken, diğeri Harem-i Şerif’e açılmaktadır (Uğurluel, 2022; Erguvan Medresesi, 2024).
